Zurück
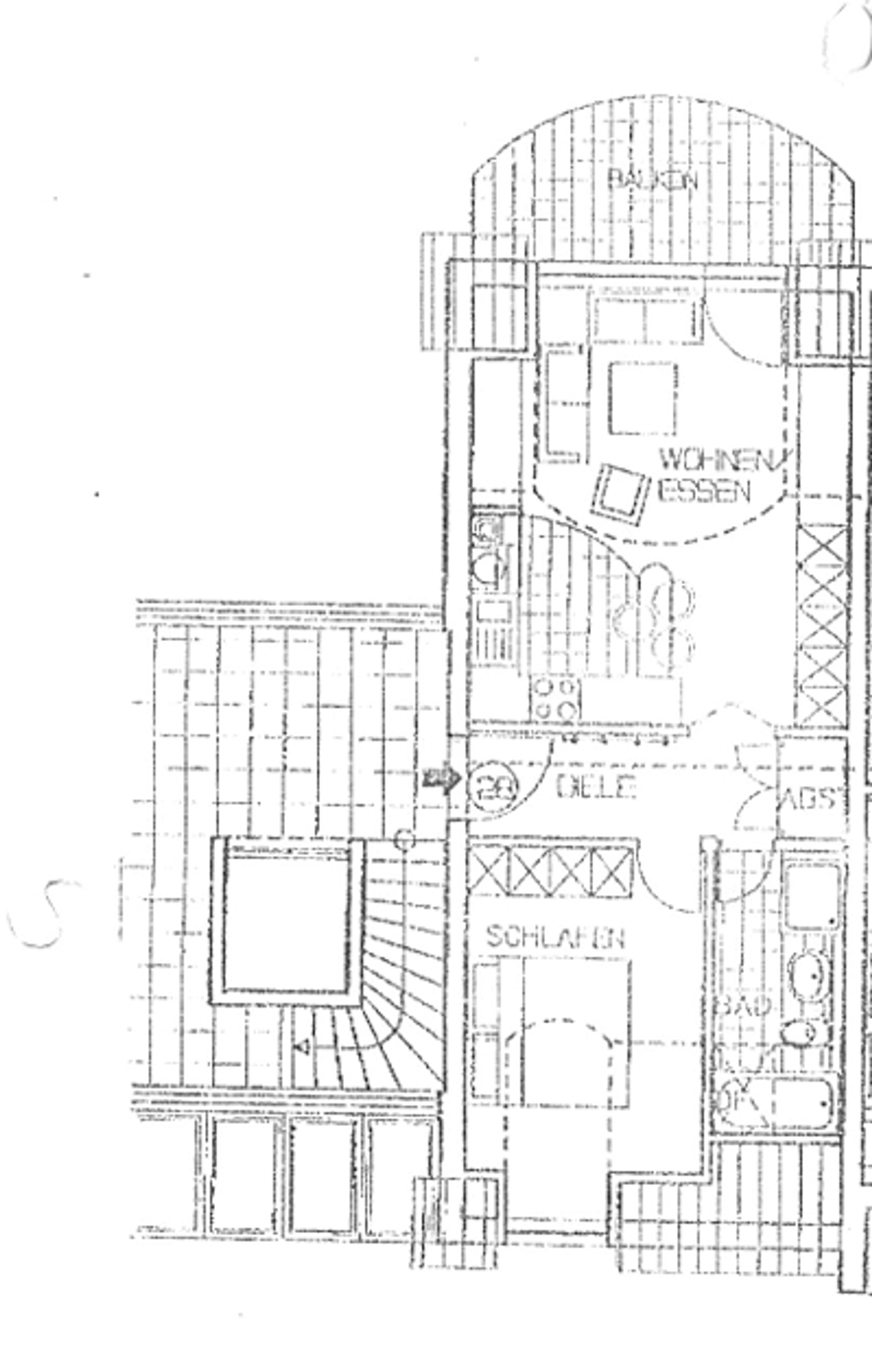
Charmante Dachgeschosswohnung zentral gelegen mit sonnigem Balkon
Verkauf
Ziegelofenweg
2a,
67346
Speyer
195.000€
Zum PDF Exposé ->
Alle 2 Bilder anzeigen
Information
Objektnummer:
00898764-1
Postleitzahl:
67346
Stadt:
Speyer
Anzahl Zimmer:
2
Wohnfläche:
56
Anzahl Schlafzimmer:
1
Energieausweis:
liegt zur Besichtigung vor
Baujahr:
2001
Badezimmer:
1
Etagen:
3
Objektart:
Wohnung
Status:
Verkauf
Hausgeld:
225€
Stellplätze:
1
Beschreibung
Besonderheiten der Immobilie
Lage der Immobilie
Sonstiges
Sie interessieren sich für diese Immobilie?
Ich bestätige, die
Datenschutzbestimmungen
gelesen und akzeptiert zu haben.
Nachricht senden