Zurück
Top 3-Zimmer ETW ohne Maklergebühr in Velbert-Nierenhof
Verkauf
42555
Velbert
169.000€
Zum PDF Exposé ->
Alle 18 Bilder anzeigen
Information
Objektnummer:
50677469-1
Postleitzahl:
42555
Stadt:
Velbert
Anzahl Zimmer:
3
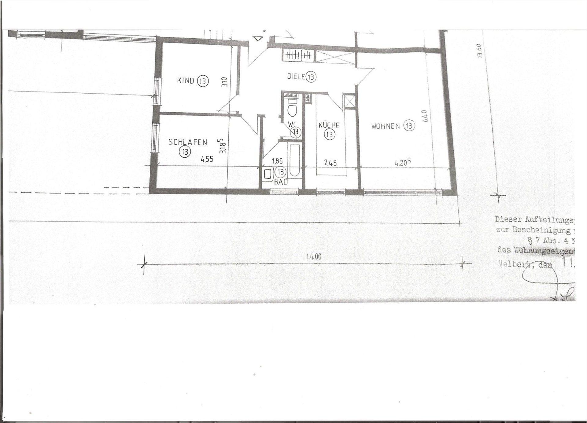
Wohnfläche:
80
Anzahl Schlafzimmer:
2
Energieausweis:
liegt zur Besichtigung vor
Baujahr:
1963
Badezimmer:
1
Etagen:
3
Objektart:
Wohnung
Status:
Verkauf
Hausgeld:
238.00€
Stellplätze:
1
Beschreibung
Besonderheiten der Immobilie
Lage der Immobilie
Sonstiges
Sie interessieren sich für diese Immobilie?
Ich bestätige, die
Datenschutzbestimmungen
gelesen und akzeptiert zu haben.
Nachricht senden