Zurück
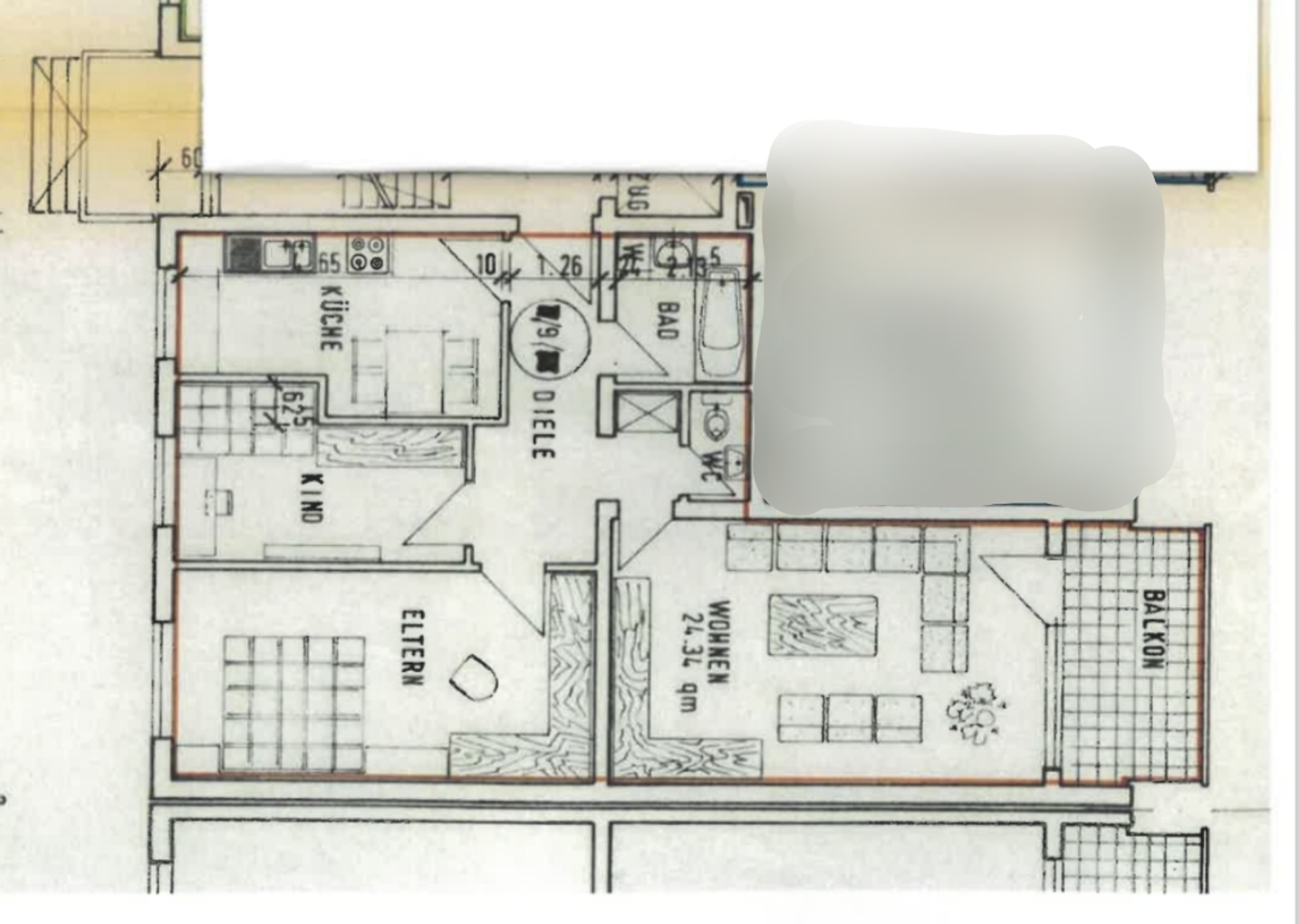
3-Zimmer-Eigentumswohnung mit Top-Ausstattung, Graben-Neudorf
Verkauf
76676
Graben-Neudorf
335.000€
Zum PDF Exposé ->
Alle 12 Bilder anzeigen
Information
Objektnummer:
74503326-1
Postleitzahl:
76676
Stadt:
Graben-Neudorf
Anzahl Zimmer:
3
Wohnfläche:
80
Anzahl Schlafzimmer:
2
Energieausweis:
liegt zur Besichtigung vor
Baujahr:
1982
Badezimmer:
1
Etagen:
2
Objektart:
Wohnung
Status:
Verkauf
Hausgeld:
345€
Stellplätze:
1
Beschreibung
Besonderheiten der Immobilie
Lage der Immobilie
Sonstiges
Sie interessieren sich für diese Immobilie?
Ich bestätige, die
Datenschutzbestimmungen
gelesen und akzeptiert zu haben.
Nachricht senden