Zurück
Exklusive Architekten-DHH mit Einfamilienhaus-Flair, WP, A+, PV
Verkauf
66914
Waldmohr
758.000€
Zum PDF Exposé ->
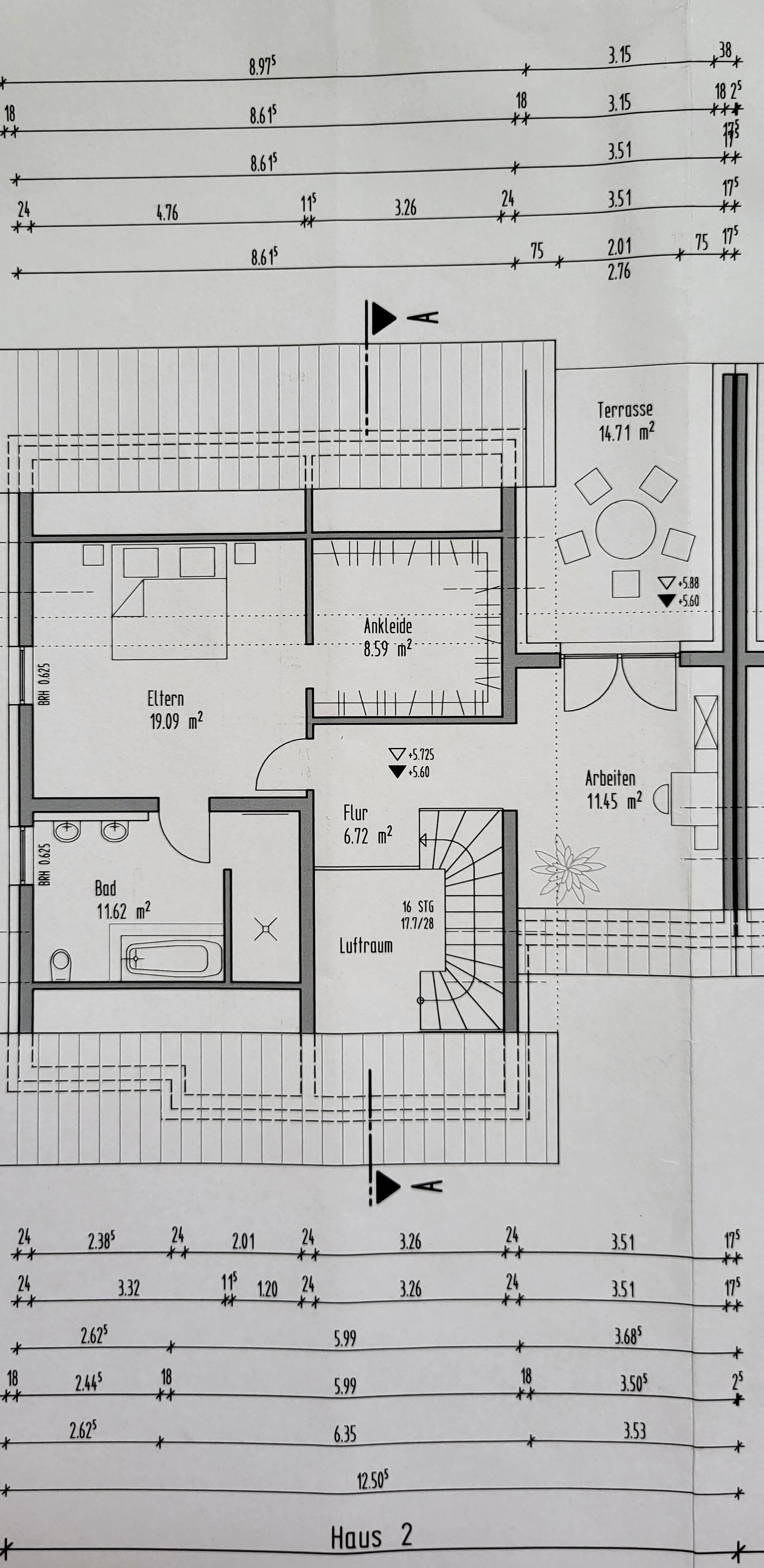
Alle 23 Bilder anzeigen
Information
Objektnummer:
98722485-1
Postleitzahl:
66914
Stadt:
Waldmohr
Anzahl Zimmer:
6
Wohnfläche:
280
Anzahl Schlafzimmer:
5
Energieausweis:
liegt zur Besichtigung vor
Baujahr:
2012
Badezimmer:
2
Objektart:
Haus
Status:
Verkauf
Garage:
1
Stellplätze:
1
Beschreibung
Besonderheiten der Immobilie
Lage der Immobilie
Sie interessieren sich für diese Immobilie?
Ich bestätige, die
Datenschutzbestimmungen
gelesen und akzeptiert zu haben.
Nachricht senden