Zurück
*NEU Renoviert* 2-Raum Wohnung mit Terrasse und Garten
Vermietung
Haselbrunner Str.
1,
08525
Plauen
360€
Zum PDF Exposé ->
Alle 6 Bilder anzeigen
Information
Objektnummer:
JrYPXHhF3o-3
Postleitzahl:
08525
Stadt:
Plauen
Anzahl Zimmer:
2
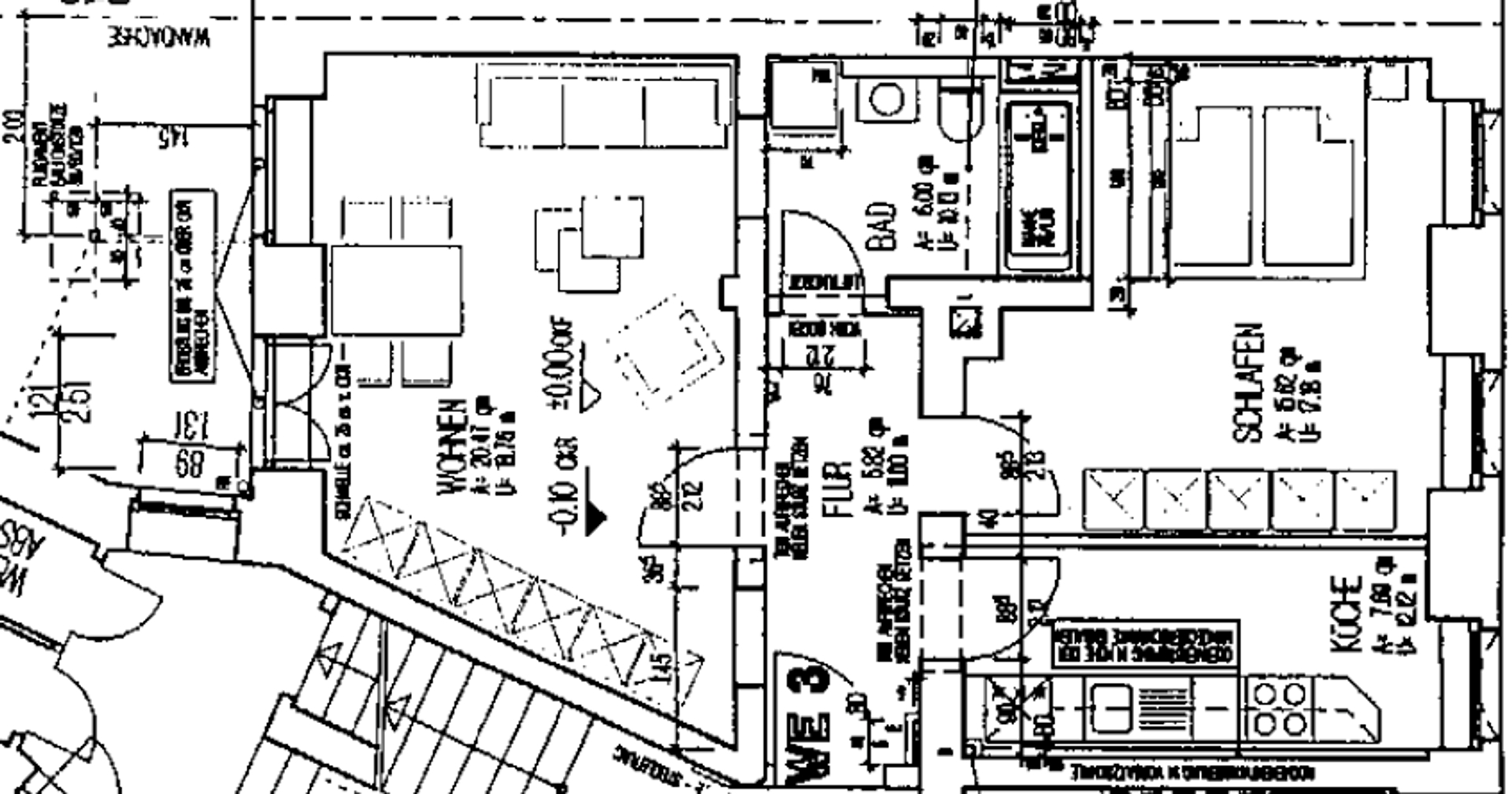
Wohnfläche:
61
Energieausweis:
liegt zur Besichtigung vor
Baujahr:
1920
Badezimmer:
1
Objektart:
Wohnung
Status:
Vermietung
Beschreibung
Sie interessieren sich für diese Immobilie?
Ich bestätige, die
Datenschutzbestimmungen
gelesen und akzeptiert zu haben.
Nachricht senden