Zurück
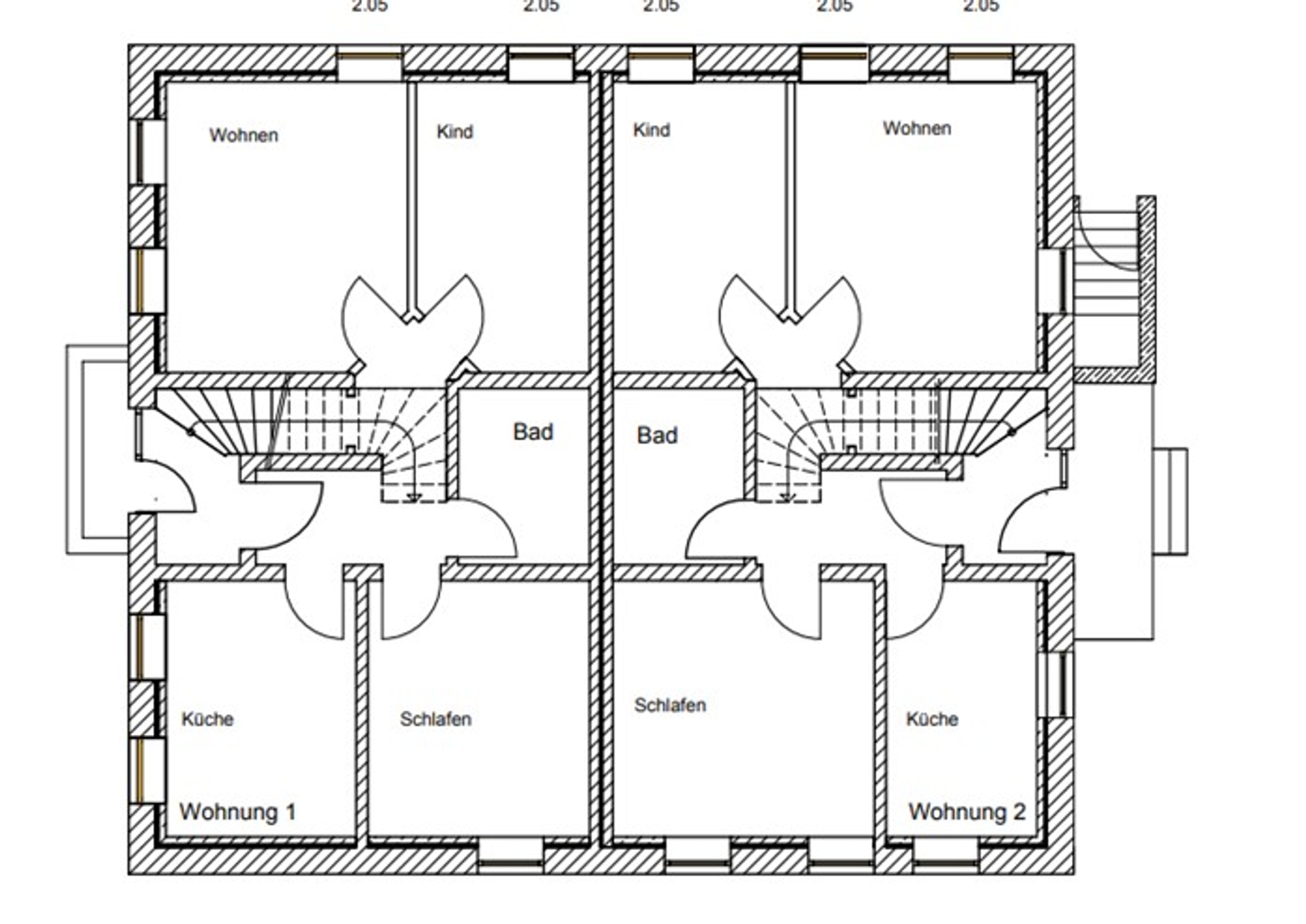
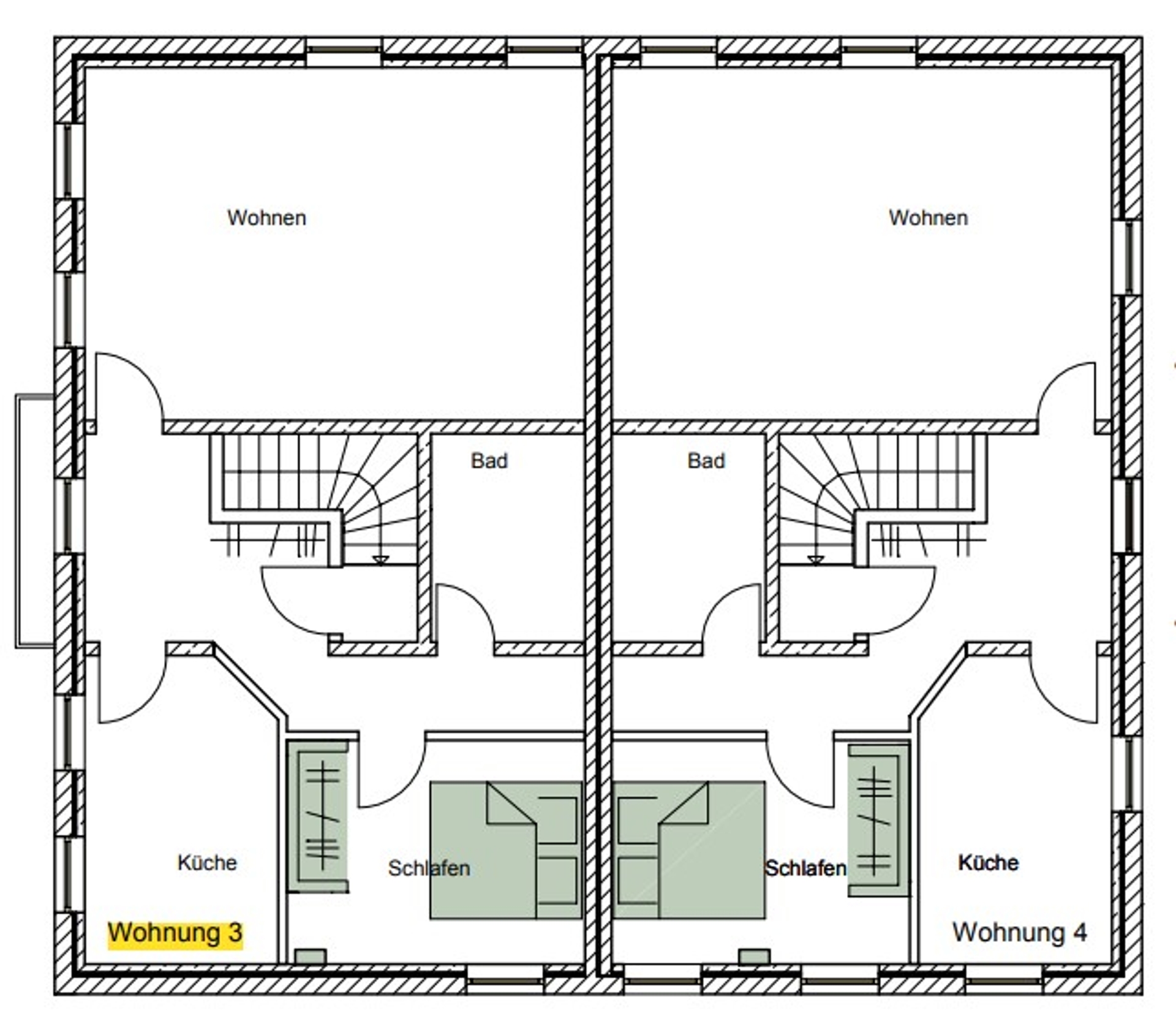
Gründerzeitvilla mit 4 Wohneinheiten im Ortskern von Barnstorf - Kernsanierung 2013
Verkauf
Lange Str.
16/16a,
49406
Barnstorf
600.000€
Zum PDF Exposé ->
Alle 15 Bilder anzeigen
Information
Objektnummer:
T2cTJ6vY6V-2
Postleitzahl:
49406
Stadt:
Barnstorf
Anzahl Zimmer:
10
Wohnfläche:
272
Anzahl Schlafzimmer:
0
Energieausweis:
liegt zur Besichtigung vor
Baujahr:
1880
Objektart:
Haus
Status:
Verkauf
Stellplätze:
4
Besonderheiten der Immobilie
Lage der Immobilie
Sonstiges
Sie interessieren sich für diese Immobilie?
Ich bestätige, die
Datenschutzbestimmungen
gelesen und akzeptiert zu haben.
Nachricht senden