Zurück
Traumhafte Eigentumswohnung mit fantastischen Rheinblick
Verkauf
Benrather Schlossallee
12,
40597
Duesseldorf
665.000€
Zum PDF Exposé ->
Alle 18 Bilder anzeigen
Information
Objektnummer:
hf20_-wXUn-1
Postleitzahl:
40597
Stadt:
Duesseldorf
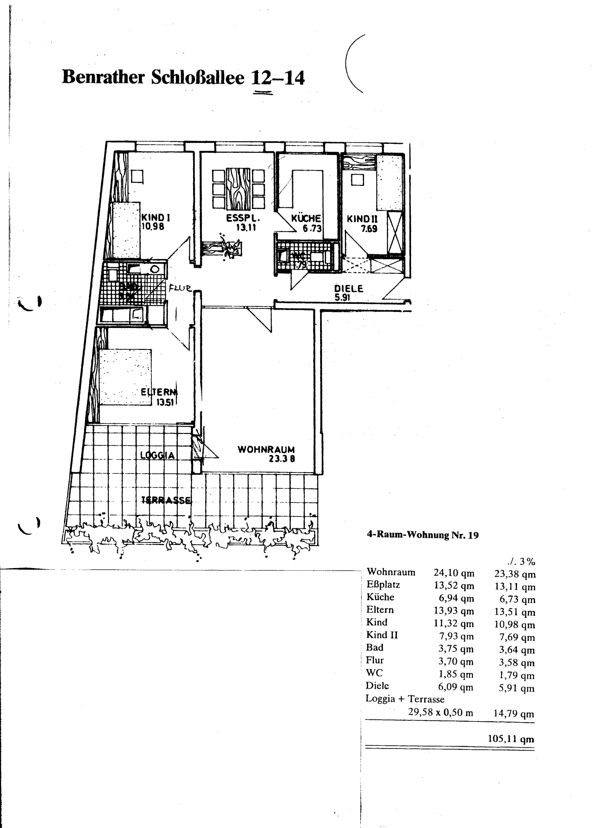
Anzahl Zimmer:
4
Wohnfläche:
105
Anzahl Schlafzimmer:
2
Energieausweis:
liegt zur Besichtigung vor
Baujahr:
1978
Badezimmer:
2
Etagen:
3
Objektart:
Wohnung
Status:
Verkauf
Hausgeld:
550€
Stellplatz Kaufpreis:
0
Stellplätze:
1
Beschreibung
Besonderheiten der Immobilie
Lage der Immobilie
Sonstiges
Sie interessieren sich für diese Immobilie?
Ich bestätige, die
Datenschutzbestimmungen
gelesen und akzeptiert zu haben.
Nachricht senden