Exklusives Angebot: Jetzt zusätzlich 10% sparen mit dem Code
BLACKFRIDAY10
Zurück
Betreutes Wohnen | Seniorenwohnen | Betreute Wohnung | Eigentumswohnung | Appartement | Wertanlage
Verkauf
Gotthardstraße
1b,
94259
Kirchberg im Wald
171.326€
Zum PDF Exposé ->
Alle 10 Bilder anzeigen
Information
Objektnummer:
zqwrHkmpuSIewS8qT0IGe-6
Postleitzahl:
94259
Stadt:
Kirchberg im Wald
Anzahl Zimmer:
2
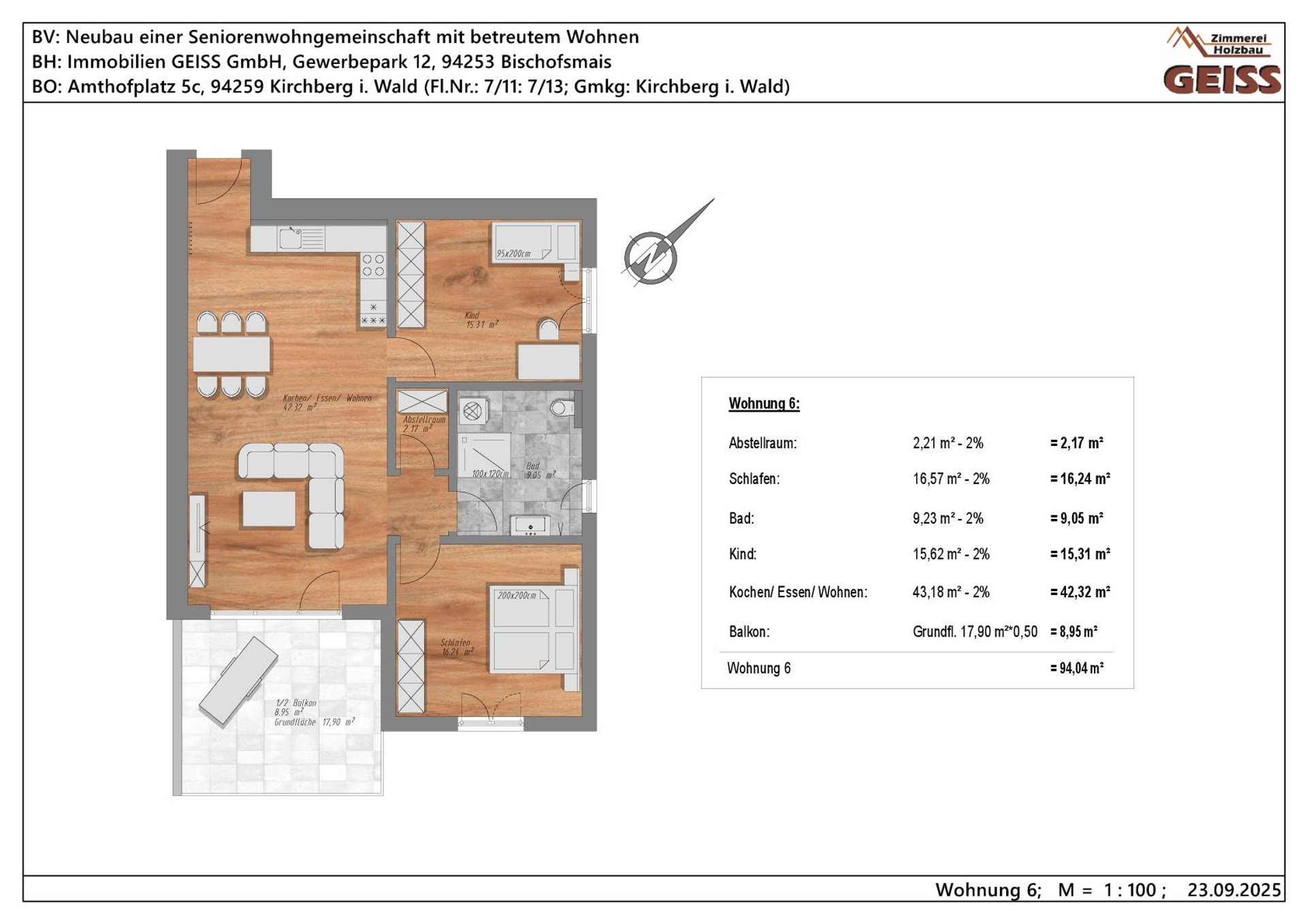
Wohnfläche:
50.39
Anzahl Schlafzimmer:
0
Energieausweis:
liegt zur Besichtigung vor
Baujahr:
2025
Objektart:
Wohnung
Status:
Verkauf
Beschreibung
Besonderheiten der Immobilie
Lage der Immobilie
Sonstiges
Sie interessieren sich für diese Immobilie?
Ich bestätige, die
Datenschutzbestimmungen
gelesen und akzeptiert zu haben.
Nachricht senden